In einer Sondersitzung am Freitag (27. Februar 2015) möchte der Konversionssenat einen Grundsatzbeschluss zum Erhalt der Wohnungen auf dem US-Kasernengelände fällen. Ab 14 Uhr können Sie an dieser Stelle unsere Live-Berichterstattung verfolgen.
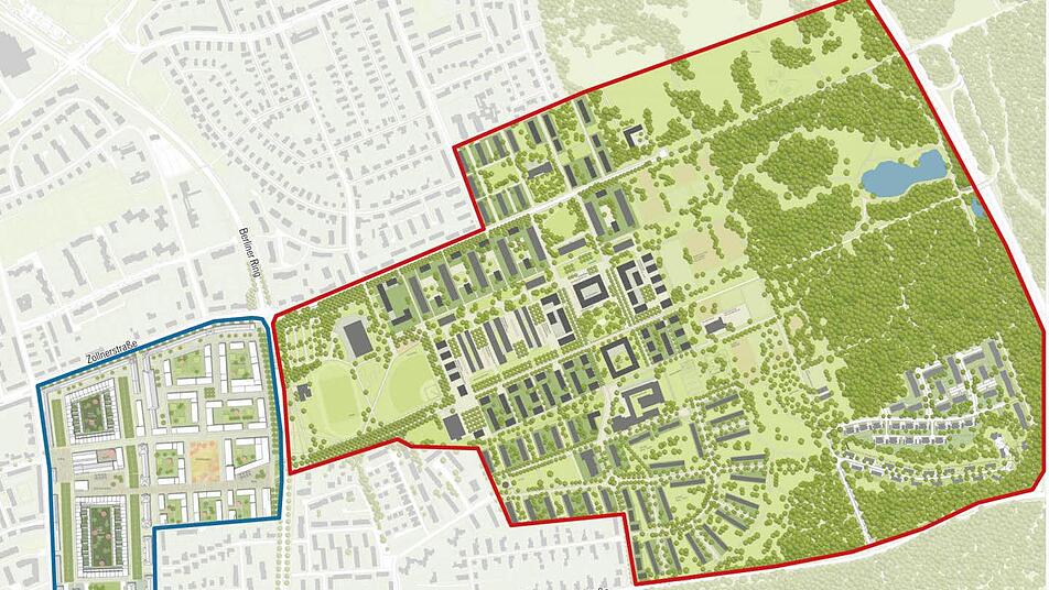
Zwei Architekturbüros teilen sich die Beplanung des Konversionsgeländes. Pesch und Partner aus Stuttgart im Westen, Morpho-Logic aus München im Osten. Grafik: Klaus Heim
Am Freitag ab 14 Uhr finden Sie hier Informationen direkt aus der Sitzung.